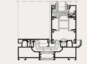
Il sistema di finestre in alluminio Schuรหcoย AWS 65ย si distingue per il suo ampio assortimento come sistema di finestre standard ideale per diverse applicazioni. Si possono scegliere fino a cinque linee di design per conferire un aspetto accattivante sia alle nuove costruzioni che alle ristrutturazioni. Con il suo ampio assortimento di profili per sezioni in vista ridotte, l’alto livello di trasparenza e la totale compatibilitaรโฌ con il programma di porte Schuรหco ADS, eรโฌ possibile realizzare anche progetti piuรโฌ complicati.ย I sistemi Schuรหco Block creano una finestra dall’aspetto particolarmente elegante senza ante visibili. Questa attraente variante di design, nella quale il telaio fisso esterno copre completamente il telaio dell’anta, consente di realizzare grandi superfici vetrate trasparenti grazie allo stipite estremamente sottile. Con valori di isolamento acustico eccellenti e prestazioni antieffrazione fino a RC3 (WK3),ย la finestra Schuรหco eรโฌ un prodotto non solo affidabile, ma anche versatile. Anche in termini di comfort, le apparecchiature a scomparsa Schuรหco AvanTec e l’azionamento meccatronico Schuรหco TipTronic, su richiesta, offrono una moderna facilitaรโฌ d’uso. A cioรโฌ si aggiunge
una vasta gamma di maniglie dalle forme accattivanti con finiture perfette per ogni linea di design.
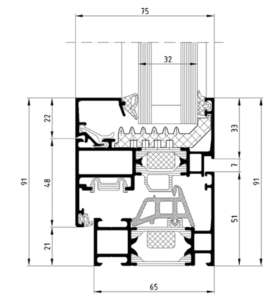
Il sistema modulare Schuรหco BS (block system) con anta a scomparsa coniuga lโaspetto design, con sezione in vista di soli 73 mm, con le piuรโฌ alte prestazioni di isolamento termico, raggiunte con la serie AWS 75 BS.HI+.ย Il sistema eรโฌ disponibile in due diverse profonditaรโฌ, 65mm
(AWS 65 BS.HI+) e 75 mm (AWS 75 BS.HI+) per ottenere valori differenti di isolamento termico, offrendo cosiรโฌ lโopportunitaรโฌ
di poter realizzare ed utilizzare il prodotto giusto per ogni condizione climatica.ย Questo sistema eรโฌ ideale in caso di ristrutturazione in quanto garantisce la massima trasparenza, con una superficie vetrata elevata, che facilita lโingresso della luce naturale negli ambienti. Permette inoltre la realizzazione di porte finestre con soglia ribassata, ad una o due ante, che con unโaltezza a terra di soli 25mm garantisce un facile accesso allโesterno. Tutto questo mantenendo le elevate prestazioni di tenuta allโaria, acqua e vento dei sistemi Schuรหco.
Schรผco Italia presenta la gamma di finestre, porte finestre e scorrevoli con finituraย Schรผco SmartWood, che permette di unire le performance e la qualitร di un serramento in alluminio Schรผco a tutto il calore e le emozioni del vero legno.โ Caldo, elegante, autentico: il legno รจ storicamente uno dei materiali piรน apprezzati nei progetti dโinterni, in quanto manifestazione dellโintenso legame tra design e comfort abitativo.โ Lโunicitร di ogni singola venatura rende ogni ambiente ricercato e allo stesso tempo intimo, regalando atmosfere accoglienti e dal fascino senza tempo.โ Grazie a Schรผco SmartWood, da oggi le qualitร del legno si fondono con i vantaggi dalla tecnologia dei sistemi in alluminio piรน innovativi, a vantaggio non solo della sicurezza, ma anche e soprattutto del benessere delle persone.โLa tecnologia SmartWood, infatti, permette di rivestire i profili interni degli infissi in alluminio in vero legno โ disponibile in unโampia gamma di colorazioni โ contribuendo a definire la personalitร dellโambiente e mantenendo inalterate la qualitร , le prestazioni tecniche e lโeleganza minimale tipiche di un infisso in alluminio Schรผco.โ Il processo produttivo di Schรผco SmartWood prevede lโossidazione dei profili in alluminio, a cui segue lโapplicazione del tranciato in legno DIrovere, la sua levigatura e il passaggio di piรน mani di trattamento e finitura superficiale.โ Lo spessore delle lamine di soli 6 decimi di millimetro consente di realizzare un elevato numero di profili contenendo in modo significativo la quantitร necessaria di materia prima.โ Il prodotto finale รจ dunque altamente durevole (la resistenza del rivestimento in legno รจ stata testata con severe prove cicliche a temperature e umiditร diverse), ma nello stesso tempo si distingue per lโelevata sostenibilitร ambientale
Il sistema scorrevole e scorrevole a sollevamento Schรผcoย ASE 60ย presenta eccellenti valori di isolamento termico, profili di spessore estremamente ridotto e molteplici soluzioni in termini di design e comfort.โย Uno dei punti salienti di questa nuova generazione di sistemi รจ che il sistema scorrevole puรฒ essere configurato individualmente.โ Opzioni come i sistemi di sicurezza e comfort Schรผco SmartStop e Schรผco SmartClose assicurano la massima facilitร d’uso.โย Il sistema di profili con componenti a scomparsa evidenzia lโalta qualitร del design anche quando lโanta รจ aperta.โย La facilitร di accesso, l’elevato livello di comfort e l’estetica purista della serie Schรผco ASE 60 stabiliscono nuovi standard nella creazione di sofisticati sistemi scorrevoli e scorrevoli a sollevamento.โ
Scorrevole panoramico Schuรหcoย ASE 67 PD: completa trasparenza, massima accessibilitaรโฌ.ย Il nuovo sistema in alluminio Schuรหco ASE 67 PD (Aluminium Sliding Element 67 mmย Panorama Design) rende possibile la realizzazione di vetrate scorrevoli di grandi dimensioni (con grandezza dellโanta fino a 3200X3000 mm e peso fino a 400 Kg)ย e dalla massima trasparenza.ย Il telaio esterno, infatti, eรโฌ stato progettato per scomparire allโinterno delle murature dellโedificio, lasciando in vista solamente un sottilissimo nodo centrale di 31 mm.ย Elegante e discreto, il nuovo scorrevole Schuรหco ASE 67 PD eรโฌ performante anche dal puntoย di vista dellโaccessibilitaรโฌ: la soglia โ0-levelโ, perfettamente piana, agevola il passaggioย tra ambienti interni ed esterni favorendo lโaccesso anche a chi ha difficoltaรโฌ di movimento, come bambini, anziani e persone diversamente abili
